Costa Verde, Panamá 2018
ENTORNO - Actualmente, la Ciudad de Panamá es una de las áreas de mayor crecimiento en América Latina. Tanto la falta de un planeamiento urbano adecuado como los precios altamente especulativos de la tierra han hecho que este crecimiento se torne en una expansión horizontal cuyo único parámetro de control aparenta ser las barreras naturales que desde su inicio forzaron el crecimiento unilateral de la ciudad. El núcleo de la Ciudad de Panamá nació como una fortificación militar, acuñada entre el Océano Pacífico, el Canal de Panamá, y los territorios originalmente conocidos como la Zona del Canal - una franja de territorio de cinco millas de ancho hacia cada ribera del Canal, controlada hasta hace poco por los Estados Unidos. Al recobrar Panamá estos territorios en el año 2000, esta franja desapareció inmediatamente, incorporando un gran pedazo de tierra al tejido urbano existente y generando todo tipo de cambios drásticos en los patrones de crecimiento de la ciudad. Prontamente, el pequeño pueblo cercano de Chorrera, al otro lado del Canal se empezó a convertir en un lugar ideal para aquellos que buscaban comprar tierra barata, desde donde poder viajar cotidianamente a sus lugares de trabajo en la ciudad. Chorrera se fue convirtiendo en una ciudad dormitorio satelital, colonizada por comunidades encerradas de gran escala, con casas repetitivas, y plazas comerciales de gran escala. Actualmente, unas 100,000 personas (al rededor de un 20% de la fuerza laboral de la Ciudad de Panamá) viven en Chorrera y conducen diariamente a la Ciudad de Panamá. Sin embargo, Chorrera está lejos de ser una ciudad autosuficiente.
TEJIDO URBANO - Los desarrollos residenciales convencionales se enfocan el el valor individualista de la propiedad privada, y evolucionan hacia casas repetitivas donde la identidad y la individualidad acaban desapareciendo. Por el otro lado, los desarrollos comerciales convencionales, como resultado de esta segregación, se ven obligados a depender del automóvil como su único parámetro de diseño. Este proyecto enfatiza la necesidad de promover el uso mixto en el área, y de crear tejido urbano que complemente la parcelización de propiedad privada. La idea de que el espacio compartido interactivo, no solo es una alternativa, sino que también puede asegurar una mejor calidad de vida.
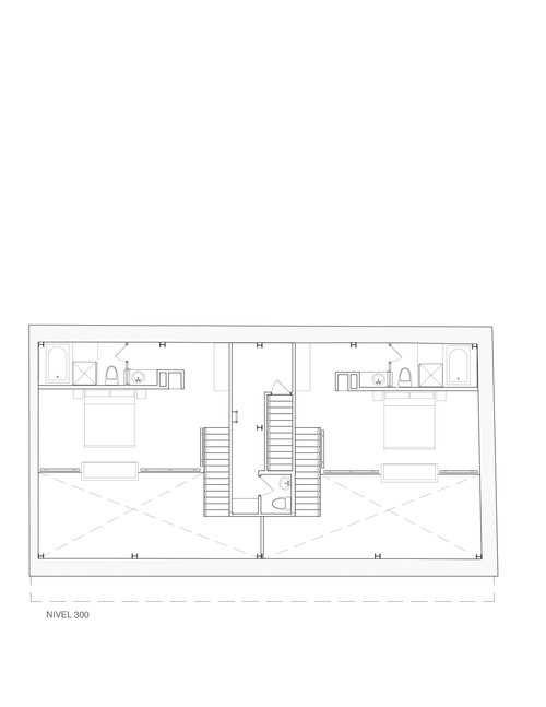
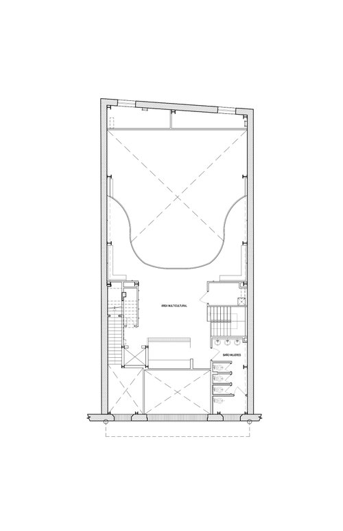
PROYECTO - El proceso de diseño arranca por asignar una parcela de terreno a reserva natural al área del sitio con mayor arborización. Un desnivel de siete metros disecta la propiedad y comienza a sugerir una división sutil entre espacio semi-público y espacio semi-privado. El proyecto se define como una serie de cuadras o manzanas que transicionan desde más comercial hacia la calle frontal del proyecto, hasta más residencial hacia la quebrada posterior. Al plantearse estos bloques de propiedad privada, los espacios restantes se convierten en calles, aceras, ciclovías y parques. A cada cuadra se le asigna una zonificación, las cuales oscilan desde comercial a nivel de calle con corporativo en altura, hasta casas tipo dúplex en planta baja con apartamentos en altura. El núcleo de cada edificación es utilizado para estacionamientos privados y áreas de uso común.
__
BACKGROUND - As of today, Panama City is one of the fastest growing urban areas in Latin America. Lack of proper urban planning and highly speculative land prices have caused this growth to generate an intense urban sprawl, only partly controlled by the physical barriers that - since the birth of Panama City - have forced it to expand in a single direction, thus amplifying the effect. The core of Panama City was born as a military colonial fortress nestled between the shore of the Pacific Ocean, the Panama Canal, and the territories formerly known as the Canal Zone - a strip of land five miles to each side of the Canal trench, controlled until recently by the US government. As Panama gained full control of the Canal in the year 2,000, the border that defined the Canal Zone was suddenly eliminated, incorporating a large chunk of land into a live urban fabric, and generating change in the patterns of urban growth. Suddenly, the small rural town of Chorrera became an area of opportunity for those seeking to buy cheap land from where to commute to their places of work in the city. Chorrera started to become a satellite dormitory city, colonized by large gated communities of "cookie-cutter" homes and segregated large-scaled commercial districts. As of today, the city of Chorrera is home to about 100,000 commuters (about 20% of the work force of Panama City). However, it is far from being self sufficient as a city.
URBAN FABRIC - Conventional residential developments focus on the value of individually owned property, and evolve into expansive "matchbox" housing where identity and individuality actually disappear. On the other hand, conventional commercial developments, as a result of urban segregation, are forced to rely on the automobile as their only design driving force. This project addresses the need to promote mixed-use program in the area, and to create urban fabric and public space as a compliment to private plots. The idea that a shared interactive space is not only a cheaper alternative, but can also insure better quality of life.
PROJECT - The design process begins by assigning a specific plot of land as a natural reserve that holds the most arbored section of the site. A seven-meter level change dissects the property and serves to create a subtle separation between semi-public and semi-private. The project is arranged as a series of blocks that transition from a more medium-density commercial urban area facing the main street, to a more low-density residential zoning towards a creek. As the blocks are laid out as solid units, public space is created from the voids, defining sidewalks, vehicle circulation, roadside parking, and bicycle lanes. Each block is designated a specific zoning, ranging from street-level retail and higher-level office space to street-level townhomes and higher-level flats. The core of each block holds private parking and gardens.